Oakland Planning & Development Corporation (OPDC) and Oakland Business Improvement District (OBID) will host a Development Activities Meeting in collaboration with the Dept of City Planning on Monday, October 13th, for a proposed development in North Oakland.
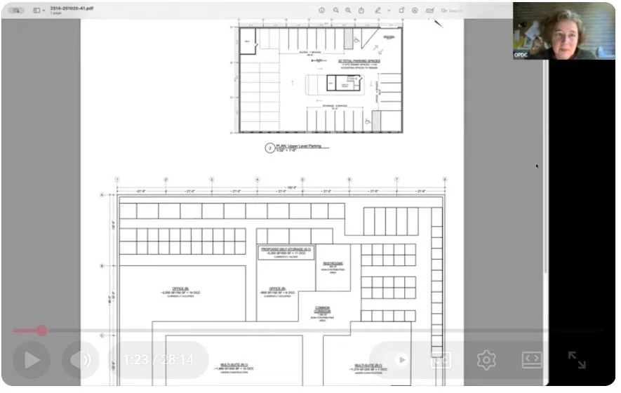
A building and development permit application has been made to convert a vacant office space into a 5,200 square foot self-storage unit at 461 Melwood Avenue.
Residents who may have difficulty accessing the meeting from home are welcome to join in person at 294 Semple Street, where OPDC will facilitate the Zoom broadcast.
Project Resources:
See below for a recording of the meeting or click here.
To join the Zoom, visit this link: October 20 DAM Meeting
Meeting ID: 871 0829 7847
Passcode: 334389
See Flyer below:
